MODULARNI BLOK MIX
120,30 € (Cena z DDV) 98,61 € (Cena brez DDV)
Opis
Visokokakovostni Betonski Bloki iz Betona
Betonski modularni bloki z nastavki za povezovanje so večnamenski elementi, ki se lahko sestavljajo podobno kot LEGO kocke. Ti bloki se povezujejo po zgornji in spodnji strani, kar omogoča ustvarjanje močne pregrade ali varnostne strukture. Naša ekipa se zaveda, kako pomembno je, da so bloki enostavni za premikanje; zato smo v vsak blok vgradili dvigalno kljuko, ki služi za dvig in manipulacijo elementov ter olajša razkladanje in postavljanje.
Uporaba Medsebojno Povezanih Betonskih Blokov
- Protipoplavne Pregrade
- Stene za Zadrževanje Materiala
- Prometno Umirjanje/Ločevanje
- Varnostne Pregrade/Ograje
- Zidovi za Prilagojene Skladiščne Prostore
- Objekti za Odpadke in Reciklažo
- Zemeljske Bankine
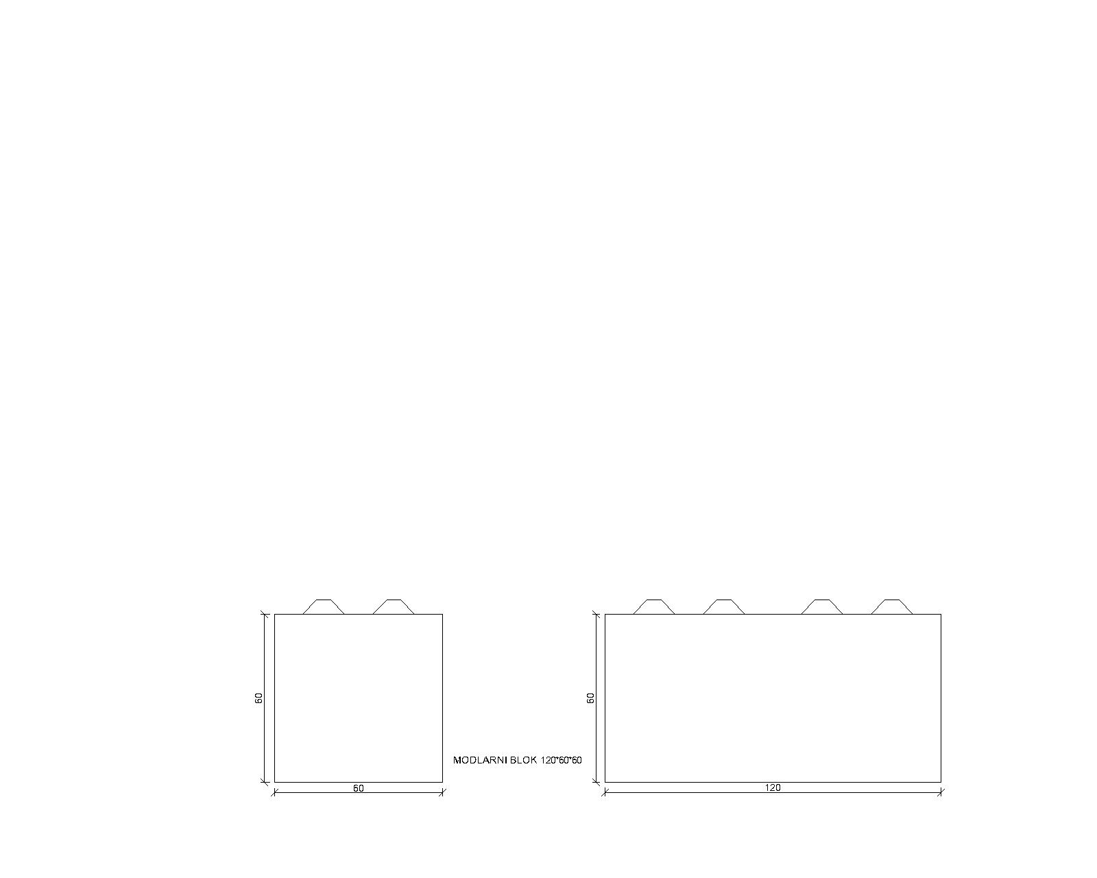
Velikosti Medsebojno Povezanih Betonskih Blokov
- Polni bloki: 1200 mm x 600 mm x 600 mm
- Polovični bloki: 600 mm x 600 mm x 600 mm
- Krajni elementi 45 stopinj
- Zgornji elementi brez zobov oziroma nastavkov
Naši medsebojno povezani betonski bloki ponujajo popolno ravnovesje med funkcionalnostjo in uporabnostjo. Izberite kakovost, ki trajno izpolnjuje vaše zahteve.
Dodatne podrobnosti
| Teža | 1054 kg |
|---|---|
| Dimenzije | 1200 × 60 × 60 cm |




Mnenja
Zaenkrat še ni mnenj.